Thiết kế và thi công nhà phố 2.5 tầng - Hòa Quý, Ngũ Hành Sơn, Đà Nẵng
- Quy mô2.5 tầng
- Địa điểmHòa Quý - Đà Nẵng
- Thời gian thi công4 tháng
- Tổng chi phí1.3 tỷ
Cuộc sống trở nên hoàn mỹ hơn với không gian lý tưởng!
Còn điều gì tuyệt hơn khi được sống trong ngôi nhà mơ ước thể hiện phong cách của riêng mình!
Mời các bạn cùng ghé thăm Nhà phố 2.5 tầng do TÂN PHÚ THÀNH thiết kế “đậm cá tính” tại Đà Nẵng – Lộc’s House. Vẫn là mô hình nhà phố quen thuộc, nhưng lần này Tân Phú Thành đã “biến hóa” mọi chi tiết để tạo nên sự khác biệt cho gia chủ. Công trình không quá chú trọng các chi tiết cầu kỳ song vẫn đảm bảo một không gian tối ưu và thẩm mỹ cao.
Gia chủ là một người yêu sự yên tĩnh trong không gian hiện đại, ánh sáng tự nhiên cho không gian được thanh lọc tốt nhất. Bởi những phút giây được trải nghiệm trong không gian sống là điều họ thật sự cần. Vì vậy, khi tiếp xúc với gia chủ, công việc đầu tiên là bàn bạc và thảo luận để đưa ra phương án công năng tối giản, áp dụng tốt kiến trúc xanh và tạo được sự thông thoáng cho nhà phố. Từ bước khởi đầu đó, KTS đã tạo nên không gian sống lý tưởng, đáp ứng trọn vẹn nhu cầu của gia đình và nhận được lời khen ngợi của chủ nhà.
Lộc’s House đáp ứng nhu cầu của gia chủ về việc kiến tạo nên một không gian sống vừa tối giản nhưng vẫn phải đảm bảo được môi trường sống thoáng mát, cởi mở cho tất cả các thành viên trong gia đình
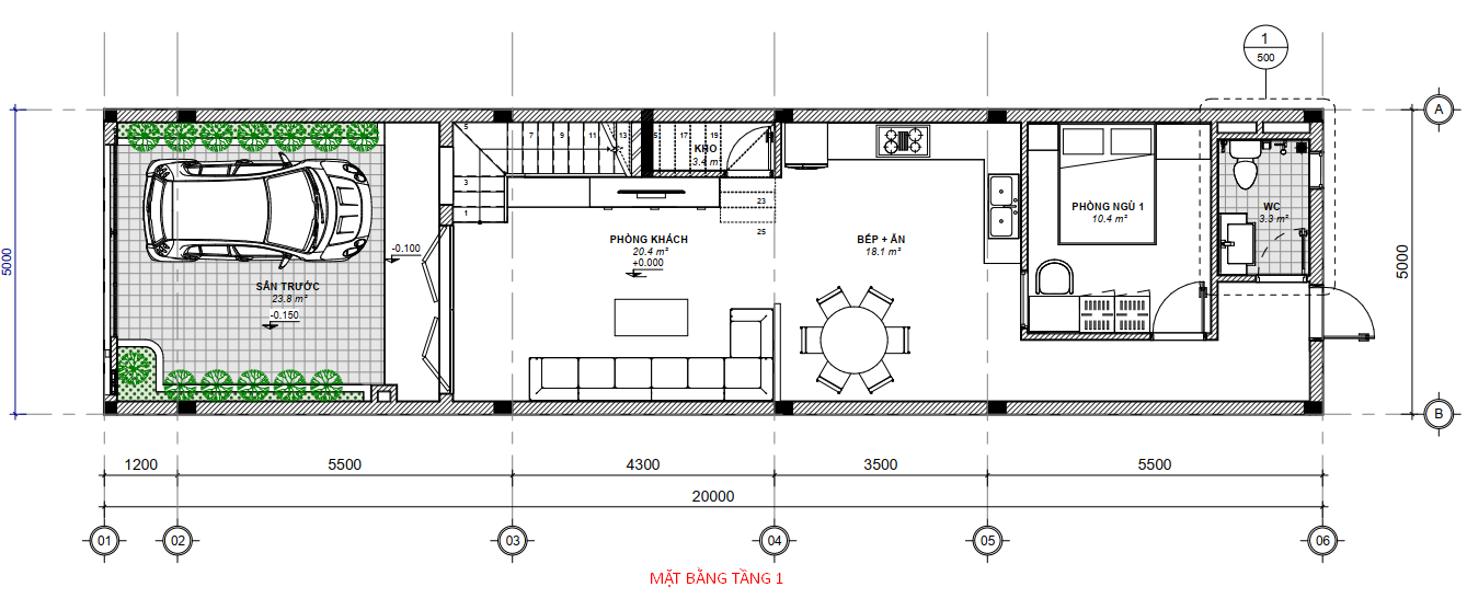
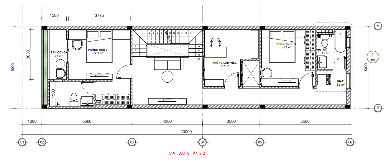
1. Phân chia không gian nhà phố hiện đại hợp lý
Truyền tải trọn vẹn tinh thần của phong cách hiện đại, Lộc’s House gây ấn tượng với màu sắc sang trọng, tinh tế cùng công năng tiện nghi. Căn nhà với tổng diện tích là 220m2 bao gồm 2.5 tầng. Không gian được thiết kế phù hợp với thói quen sinh hoạt, tạo môi trường sống lý tưởng cho gia chủ, mang đến những giải pháp thiết kế thông minh, hài hòa với cuộc sống bản địa. Ngôi nhà gồm các khu vực chức năng chính: phòng khách, bếp, 03 phòng ngủ,…Mời bạn cùng tham khảo chi tiết qua hình ảnh mặt bằng công năng bên dưới nhé!
+ Tầng 1: Sân trước, Phòng khách, Phòng bếp + ăn, 01 Phòng ngủ, 01 Toilet
+ Tầng 2: Ban công, 02 Toilet, Phòng Làm việc, 02 Phòng ngủ
+ Tầng 3: Sân thượng, Phòng thờ, Giặt phơi



Hình ảnh thiết kế mặt bằng công năng chi tiết
2. Mặt tiền đơn giản nhưng ấn tượng, hợp xu hướng
Mặt tiền Lộc’s House nổi bật với các đường nét kiến trúc vuông vắn, đơn giản. Cây xanh và hoa ở ban công chính là điểm nhấn thẩm mỹ cho không gian tươi mới. Ngoài ra, sự kết hợp hài hòa các vật liệu như gỗ conwood, đá.. tạo nên hiệu ứng cuối cùng mang lại chính là sự sang trọng và hiện đại.

Hình ảnh mặt tiền hiện đại, 6m được thiết kế bởi TÂN PHÚ THÀNH
4. Ánh sáng tự nhiên tràn ngập không gian sống
Mỗi góc trong căn nhà đều là một dấu ấn đáng tự hào của chủ nhân, là một nơi để ở, để sống, để lưu giữ những kỷ niệm ngọt ngào, đáng nhớ của cả gia đình. Yêu cầu khi thiết kế chính là tạo ra ngôi nhà thân thiện với môi trường và tận dụng các nguồn năng lượng từ thiên nhiên để hạn chế sử dụng năng lượng điện thông thường. Kiến trúc sư đã khéo léo tận dụng ánh sáng tự nhiên chiếu qua các hệ cửa kính để mang lại cảm giác thoải mái, bình yên cho ngôi nhà. Đây như một chất xúc tác giúp đánh thức sự rung động và nâng niu cảm xúc của chính những người sinh sống nơi đây.
Và kiến trúc không chỉ tạo nên nghệ thuật, mà còn là phương thức tạo nên những giá trị về cuộc sống đúng nghĩa. Thật tuyệt vời, khi ở tại nơi đây, mọi tình cảm được chan hòa và tận hưởng mọi thứ xinh xắn đến từng ngóc ngách nhỏ. Với Lộc’s house, gia chủ sẽ tận hưởng mọi cảm giác thư thái, “là chính mình”. TÂN PHÚ THÀNH xin trân trọng giới thiệu!
4. HÌNH ẢNH THỰC TẾ THI CÔNG:

.png)
.png)















===========================================
Lộc’s House
CĐT: Mr. Lộc
Đ/c: Hòa Quý, Đà Nẵng
Diện tích đất: 5×20 m
Diện tích xây dựng: 220m2
Số tầng: 2.5 tầng
Thiết kế: TÂN PHÚ THÀNH
Thi công trọn gói: TÂN PHÚ THÀNH
- Nhà thép tiền chế - Thiết Kế & Thi Công Trọn Gói Quán Bar
- Quy mô:
- Tổng diện tích sàn: m2
- Tổng chi phí:
- Thiết kế thi công nội thất - Nhà ở kết hợp kinh doanh Spa
- Quy mô:
- Tổng diện tích sàn: m2
- Tổng chi phí:
- Nội thất tối ưu cho căn hộ cho thuê - Thiết kế thi công trọn gói
- Quy mô:
- Tổng diện tích sàn: m2
- Tổng chi phí:
- Quy trình thi công móng cọc nhồi và móng băng 2 phương khác nhau như thế nào
- Quy mô:
- Tổng diện tích sàn: m2
- Tổng chi phí:
- Căn hộ cho thuê - Kênh sinh lời thụ động và bền vững nhất
- Quy mô:
- Tổng diện tích sàn: m2
- Tổng chi phí:
- Thi công móng băng 1 phương - Thi công phần thô nhà phố
- Quy mô:
- Tổng diện tích sàn: m2
- Tổng chi phí:












